最近は少なくなりましたがSRC造(鉄骨鉄筋コンクリート造)の
建物をあなたが担当になった時に、鉄骨造と決定的に違うのが
鉄筋や型枠のセパレーターの貫通孔を検討する必要がある。
という事です。
セパレーターについては、基本的なピッチと柱や梁の端からの
スタートする寸法を型枠大工さんに確認しておけば、大きな失敗
につながることは少ないと私は考えています。
しかし
鉄筋の貫通孔は、必ずしも鉄筋屋さんがチェックしてくれる訳ではないので
あなたがよく考えて孔を開けなくてはいけません。
そして
意外と間違えやすいポイントが2つあります。
1つ目は
貫通孔の「高さ」です。
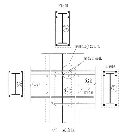
鉄筋の貫通孔の検討を行う場合にまず、鉄筋の詳細図を描くことに
なるのですが、躯体の断面を描いて、そこからかぶりを引いて、
スタラップを描いた中に主筋が並ぶのですが、
X、Y方向で交差している梁の場合は、どちらを上に配置しますか?
仮にX、Y方向で交差している梁が、まったく同じ断面寸法だった場合に、
同じように配筋の納まり図を描くと、主筋同士が干渉しますよね。
なので
どちらかを上に載せないといけないのですが、覚えていますかね?
不安な方は以下の記事で復習して下さい。
これを間違えると、構造図に書いてある内容を違反してしまうので
かなり問題になると覚悟しておいてください。
2つ目は
貫通孔の「高さ」です。
「また高さ?」とあなたは感じたかもしれませんが「高さ」です。
しかも、鉄骨図に主筋の位置をきちっと書き出したからこそ
起きやすいミスなのです。
具体的には
CADで主筋の中心点から、クリアランスを含めた貫通孔大きさの
円を描いてしまう事なのです。
「えっ?中心があっているんだから良いんじゃない?」
と感じたあなたはドツボにはまっています。
なぜなら
鉄筋は重量があるので、貫通孔の中心に留まることをせずに
重力で貫通孔の下端まで下がってしまうからです。

もしも、間違えてしまうと梁筋が下がってしまって、
下側のかぶり厚さが確保できない可能性があります。
わかると簡単、だけど陥りやすいミスの事例でした。
最後に
「公共建築工事標準仕様書 建築工事編(令和7年版) [ 国土交通省大臣官房官庁営繕部 ]」
の該当部分を確認して下さい。
P.96
鉄筋の貫通孔の孔径の最大値は、表 7.3.1 による。
表 7.3.1 鉄筋の貫通孔の孔径の最大値 鉄筋の呼び名 D10 D13 D16 D19 D22 D25 D29 D32 鉄筋の貫通孔の孔径
(mm)21 24 28 31 35 38 43 46
P.546
7.3.7 鉄筋の貫通孔の孔径
(1) 鉄骨鉄筋コンクリート造では、鉄骨製作の段階で、鉄筋の貫通孔をあけておかなければならない場合がある。
(2) 貫通孔の孔径は、「標仕」表 7.3.1 による。
鉄筋が、斜めに貫通する場合や鉄骨の形が複雑な場合には、貫通孔の径を増す必要があるが、鉄筋の間隔によっては鉄骨の断面欠損が大きくなり、構造上問題となることがあるため、必要に応じて設計担当者と打ち合わせる。
なお、同一の部位に種々の径がある場合には、混同しやすいのでなるべく統一するのがよいが、その場合は、必ず設計担当者と打ち合わせる。
(3) 鉄筋の貫通孔の位置を決めるには、仕口部分の鉄筋の状態が分かっていなければならないが、簡単な場合の例を示せば図 7.3.4 のようになる。
図 7.3.4 の作成に当たっての主な注意事項を次に示す。(ア) 鉄筋の交差位置では、どちら方向の鉄筋を上にするか決めなければならない。
一般的な基準はないが、通常梁せいの小さい方の主筋を外側にするなどの配慮が必要である。(イ) 四隅の梁筋の位置は、図 7.3.4 ハの梁部分詳細に示すようにして定める。梁筋の仮想の直径 d を 下式の値とする。
d ≦ 公称直径 + 節の最小高さ x 2
梁筋が 2段になる場合は、内側になる鉄筋が特に鉄骨に当たりやすい。
(ウ) 鉄骨面と平行となる鉄筋の間隔は、「標仕」5.3.5(4)及び(5)に定める鉄筋の間隔以上にする。
(エ) 加工した鉄筋を、どのようにして差し込んだらよいか検討しながら鉄筋の位置及び継手位置等を定める。 特に最外端の梁筋は注意を必要とする。
(オ) 鉄骨フランジの鉄筋貫通は、耐力低下を招くので、行ってはならない。
図 7.3.4 仕口部分の梁筋貫通孔の例
つまり
鉄骨鉄筋コンクリート造(SRC造)でやりがちな鉄筋貫通孔の間違いとは、
図面上に配置した鉄筋の中心と貫通孔の中心を合わせてしまって、
実際に鉄筋を配置した場合に、クリアランス分下がってしまう事です。
しかし
私の記事の目的に達するまでに、正確に鉄筋を配置出来ない場合は、
もう一度私の鉄筋工事の記事を、気になる所から出良いので
読んでみて下さいね。
実は
今回は記事で大きく取り上げなかったのですが、SRC造の貫通孔で
一番難易度(打合せてもその通りに行かない可能性)が高いのは
型枠のセパレーター用の貫通孔です。
「えっ、セパレーターのピッチって何センチだっけ?」
と頭をよぎったあなたはこちらの記事がオススメですよ。
↓ ↓ ↓













































この記事へのコメントはありません。